Wohnbau - Raaba Grambach - Dr.-Ritter-Straße 2.BA
-
slightlycrushed
- Ratgeber

- Beiträge: 111
- Registriert: Sa 06 Dez 2014 22:12
- Region: Graz
Re: Wohnbau - Raaba Grambach - Dr.-Ritter-Straße 2.BA
Hallo,
kann bezüglich wegen WC nur den Vorrednern zustimmen. WC verlegen tun sie nicht, da es ein fixes Bauteil ist, wo die senkrechten Schächte verlaufen.
Küche verlegen ist machbar. Habe ich gemacht. Gibt nur ein paar Einschränkungen bezüglich Wasseranschluss. Waren glaub ich maximal 4m bis zum nächsten Abguss oder so. Was sich bei mir aber ausging, da dann das Bad in der Nähe war. Gleiches geht auch mit Boiler verschieben, zb. in den Abstellraum. Wichtig ist dann nur, dass darunter der Waschmaschinenanschluss ist, da dies auch ein fixes Bauteil ist. Sprich der Anschluss ist immer unter dem Boiler. Man kann lediglich einen zusätzlichen Anschluss für die WaMa machen lassen, und natürlich zahlen, und den anderen ungenützt lassen.
LG Stefan
kann bezüglich wegen WC nur den Vorrednern zustimmen. WC verlegen tun sie nicht, da es ein fixes Bauteil ist, wo die senkrechten Schächte verlaufen.
Küche verlegen ist machbar. Habe ich gemacht. Gibt nur ein paar Einschränkungen bezüglich Wasseranschluss. Waren glaub ich maximal 4m bis zum nächsten Abguss oder so. Was sich bei mir aber ausging, da dann das Bad in der Nähe war. Gleiches geht auch mit Boiler verschieben, zb. in den Abstellraum. Wichtig ist dann nur, dass darunter der Waschmaschinenanschluss ist, da dies auch ein fixes Bauteil ist. Sprich der Anschluss ist immer unter dem Boiler. Man kann lediglich einen zusätzlichen Anschluss für die WaMa machen lassen, und natürlich zahlen, und den anderen ungenützt lassen.
LG Stefan
Stefan
Raaba-Grambach 1.BA Whg 1.1
Thomas-Arbeiter-Gasse Whg. 2
Raaba-Grambach 1.BA Whg 1.1
Thomas-Arbeiter-Gasse Whg. 2
-
GrafvonundzuHause
- Anfänger

- Beiträge: 14
- Registriert: Mo 08 Mai 2017 22:12
- Region: Raaba
Re: Wohnbau - Raaba Grambach - Dr.-Ritter-Straße 2.BA
Hi Stefan!
Das mit den Schächten verstehe ich. Jedoch hat an der Stelle an der ich gerne das WC hätte mein Nachbar auch sein WC(heisst seinen Schacht). Fraglich ist ob der Schacht von beiden Seiten genutzt werden kann.
LG Jan
Das mit den Schächten verstehe ich. Jedoch hat an der Stelle an der ich gerne das WC hätte mein Nachbar auch sein WC(heisst seinen Schacht). Fraglich ist ob der Schacht von beiden Seiten genutzt werden kann.
LG Jan
-
slightlycrushed
- Ratgeber

- Beiträge: 111
- Registriert: Sa 06 Dez 2014 22:12
- Region: Graz
Re: Wohnbau - Raaba Grambach - Dr.-Ritter-Straße 2.BA
Hallo Jan,
Ich verstehe was du meinst. Leider ist Kohlbacher gerade beim WC sehr unflexibel. Deshalb bin ich mir ziemlich sicher, dass sie es nicht machen werden. Das Element müssen sie ohnehin dort verbauen damit der Schacht existiert. Nachdem das Element alles für das WC besitzt, sprich auch die Öffnung für den Abfluss für das WC, kann ich mir nicht vorstellen dass sie in den Schacht vom Nachbarn bohren um dein WC anzuschließen.
Habt ihr schon einen Ausstatter zugewiesen bekommen? Dann am besten gleich einmal hinschreiben und nachfragen. So etwas auf jeden Fall vor dem Ausstattungstermin klären. Da davon ja die ganze Planung abhängt.
Halte euch die Daumen, dass es funktioniert.
LG
Ich verstehe was du meinst. Leider ist Kohlbacher gerade beim WC sehr unflexibel. Deshalb bin ich mir ziemlich sicher, dass sie es nicht machen werden. Das Element müssen sie ohnehin dort verbauen damit der Schacht existiert. Nachdem das Element alles für das WC besitzt, sprich auch die Öffnung für den Abfluss für das WC, kann ich mir nicht vorstellen dass sie in den Schacht vom Nachbarn bohren um dein WC anzuschließen.
Habt ihr schon einen Ausstatter zugewiesen bekommen? Dann am besten gleich einmal hinschreiben und nachfragen. So etwas auf jeden Fall vor dem Ausstattungstermin klären. Da davon ja die ganze Planung abhängt.
Halte euch die Daumen, dass es funktioniert.
LG
Stefan
Raaba-Grambach 1.BA Whg 1.1
Thomas-Arbeiter-Gasse Whg. 2
Raaba-Grambach 1.BA Whg 1.1
Thomas-Arbeiter-Gasse Whg. 2
-
GrafvonundzuHause
- Anfänger

- Beiträge: 14
- Registriert: Mo 08 Mai 2017 22:12
- Region: Raaba
Re: Wohnbau - Raaba Grambach - Dr.-Ritter-Straße 2.BA
Hallo nochmal!
Nein haben noch keinen bekommen, sollte aber bald soweit sein. Wäre echt schade bei eier 84 m² Wohnung auf ein 5m² Bad beschränkt zu sein. Wir hätten gerne Wanne und Dusche gehabt(Deshalb das WC versetzt).
Naja.. kommt Zeit kommt Rat.
Danke erstmal für die Auskünfte.
Nein haben noch keinen bekommen, sollte aber bald soweit sein. Wäre echt schade bei eier 84 m² Wohnung auf ein 5m² Bad beschränkt zu sein. Wir hätten gerne Wanne und Dusche gehabt(Deshalb das WC versetzt).
Naja.. kommt Zeit kommt Rat.
Danke erstmal für die Auskünfte.
-
slightlycrushed
- Ratgeber

- Beiträge: 111
- Registriert: Sa 06 Dez 2014 22:12
- Region: Graz
Re: Wohnbau - Raaba Grambach - Dr.-Ritter-Straße 2.BA
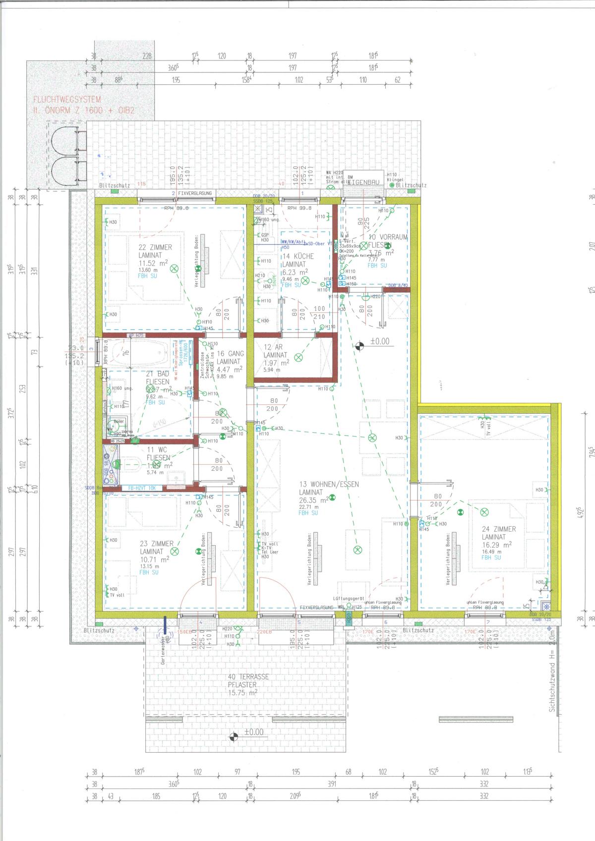
Verstehe ich voll. Ich habe die 89m² Wohnung und konnte mein Bad beinahe verdoppeln und auch das tote Eck von der Küche dann fürs Bad für Boiler und WaMa nutzen.
Hab meinen original Plan mal angehängt und wie ich es geändert hab. Jetzt hab ich ein 9,5m² Bad. Auch die originale Küche wäre mir viel zu klein, deshalb wurde ein Zimmer "geopfert".
Vl als Anregung. Umso mehr man sieht, desto mehr Ideen kommen einem.
Die Nische im Bad wo Boiler und WaMa hinkommen wird dann noch verkleidet bzw. mit einer Tür zugemacht. So hat man den Boiler nicht mehr störend im Bad hängen. Und vor allem ist das tote Eck in der Küche wo auf beiden Seiten Hochschränke sind, gut genützt.
LG
Stefan
Hab meinen original Plan mal angehängt und wie ich es geändert hab. Jetzt hab ich ein 9,5m² Bad. Auch die originale Küche wäre mir viel zu klein, deshalb wurde ein Zimmer "geopfert".
Vl als Anregung. Umso mehr man sieht, desto mehr Ideen kommen einem.
Die Nische im Bad wo Boiler und WaMa hinkommen wird dann noch verkleidet bzw. mit einer Tür zugemacht. So hat man den Boiler nicht mehr störend im Bad hängen. Und vor allem ist das tote Eck in der Küche wo auf beiden Seiten Hochschränke sind, gut genützt.
LG
Stefan
Stefan
Raaba-Grambach 1.BA Whg 1.1
Thomas-Arbeiter-Gasse Whg. 2
Raaba-Grambach 1.BA Whg 1.1
Thomas-Arbeiter-Gasse Whg. 2
Re: Wohnbau - Raaba Grambach - Dr.-Ritter-Straße 2.BA
Kennt jemand schon den Baubeginn?
Re: Wohnbau - Raaba Grambach - Dr.-Ritter-Straße 2.BA
Ich bin soeben von der Wohnung 4.3 zurückgetreten falls jemand Interesse hat!
Lg Manuel
Lg Manuel
-
philipp1692
- Anfänger

- Beiträge: 20
- Registriert: Sa 18 Mär 2017 07:30
- Region: Graz
Re: Wohnbau - Raaba Grambach - Dr.-Ritter-Straße 2.BA
Darf man fragen wieso?
-
slightlycrushed
- Ratgeber

- Beiträge: 111
- Registriert: Sa 06 Dez 2014 22:12
- Region: Graz
Re: Wohnbau - Raaba Grambach - Dr.-Ritter-Straße 2.BA
ich denke, weil er vielleicht zum Projekt in Vasoldsberg gewechselt hat.
Ob er da auch so einen schönen "Wetterschutz" hat wie in Raaba
Hoffe er hat was passenderes für sich gefunden. toi toi toi
Ob er da auch so einen schönen "Wetterschutz" hat wie in Raaba
Hoffe er hat was passenderes für sich gefunden. toi toi toi
Stefan
Raaba-Grambach 1.BA Whg 1.1
Thomas-Arbeiter-Gasse Whg. 2
Raaba-Grambach 1.BA Whg 1.1
Thomas-Arbeiter-Gasse Whg. 2
-
GrafvonundzuHause
- Anfänger

- Beiträge: 14
- Registriert: Mo 08 Mai 2017 22:12
- Region: Raaba
Re: Wohnbau - Raaba Grambach - Dr.-Ritter-Straße 2.BA
Eine Verlängerung der mit Glas überdachten Oberfläche bei einer Dachterrassenwohnung dürfte kein Problem sein oder hat von euch jemand anderweitige Erfahrungen gemacht?
-
slightlycrushed
- Ratgeber

- Beiträge: 111
- Registriert: Sa 06 Dez 2014 22:12
- Region: Graz
Re: Wohnbau - Raaba Grambach - Dr.-Ritter-Straße 2.BA
Hallo Graf 
also ein Freund wollte generell was andere als Überdachung machen, ging aber natürlich nicht.
Auch dann die bestehende Glasüberdachung zu verlängern wurde von Kohlbacher nicht gemacht. Sie meinten nur, dass dies später von einer Drittfirma gemacht werden könnte.
LG
also ein Freund wollte generell was andere als Überdachung machen, ging aber natürlich nicht.
Auch dann die bestehende Glasüberdachung zu verlängern wurde von Kohlbacher nicht gemacht. Sie meinten nur, dass dies später von einer Drittfirma gemacht werden könnte.
LG
Stefan
Raaba-Grambach 1.BA Whg 1.1
Thomas-Arbeiter-Gasse Whg. 2
Raaba-Grambach 1.BA Whg 1.1
Thomas-Arbeiter-Gasse Whg. 2
-
slightlycrushed
- Ratgeber

- Beiträge: 111
- Registriert: Sa 06 Dez 2014 22:12
- Region: Graz
Re: Wohnbau - Raaba Grambach - Dr.-Ritter-Straße 2.BA
Zur Info auch für den 2. BA: Ursprünglich hieß es von Kohlbacher, es wird nur A1 verfügbar sein.
Aktueller UPC Verfügbarkeitscheck listet bereits die 4 Hausnummern vom 1. und 2. BA und bestellen lässt es sich auch.
Sieht so aus, als hätte UPC doch was hingelegt.
Aktueller UPC Verfügbarkeitscheck listet bereits die 4 Hausnummern vom 1. und 2. BA und bestellen lässt es sich auch.
Sieht so aus, als hätte UPC doch was hingelegt.
Stefan
Raaba-Grambach 1.BA Whg 1.1
Thomas-Arbeiter-Gasse Whg. 2
Raaba-Grambach 1.BA Whg 1.1
Thomas-Arbeiter-Gasse Whg. 2
-
GrafvonundzuHause
- Anfänger

- Beiträge: 14
- Registriert: Mo 08 Mai 2017 22:12
- Region: Raaba
Re: Wohnbau - Raaba Grambach - Dr.-Ritter-Straße 2.BA
GsD.
Das hab ich gar nicht gewusst, dass ursprünglich nur A1 geplant war. Wollte schon meinen UPC Vertrag mitnehmen.
Auch Glasfaser ?
Das hab ich gar nicht gewusst, dass ursprünglich nur A1 geplant war. Wollte schon meinen UPC Vertrag mitnehmen.
Auch Glasfaser ?
-
slightlycrushed
- Ratgeber

- Beiträge: 111
- Registriert: Sa 06 Dez 2014 22:12
- Region: Graz
Re: Wohnbau - Raaba Grambach - Dr.-Ritter-Straße 2.BA
Ja, müsste Glasfaster sein. Laut Check angeblich bis zu 300Mbit/s.
Wird leider öfter nur A1 angeboten. Ist auch in der Thomas-Arbeiter-Gasse so. Dort ist nur A1 verfügbar. Und bei meinem letzten Anruf bei Kohlbacher bekam ich auch die Aussage, dass nur A1 angeboten werden wird. Hat sich zum Glück noch geändert anscheinend. Bestellen konnte ich es zumindest bereits bei UPC
Wird leider öfter nur A1 angeboten. Ist auch in der Thomas-Arbeiter-Gasse so. Dort ist nur A1 verfügbar. Und bei meinem letzten Anruf bei Kohlbacher bekam ich auch die Aussage, dass nur A1 angeboten werden wird. Hat sich zum Glück noch geändert anscheinend. Bestellen konnte ich es zumindest bereits bei UPC
Stefan
Raaba-Grambach 1.BA Whg 1.1
Thomas-Arbeiter-Gasse Whg. 2
Raaba-Grambach 1.BA Whg 1.1
Thomas-Arbeiter-Gasse Whg. 2
-
GrafvonundzuHause
- Anfänger

- Beiträge: 14
- Registriert: Mo 08 Mai 2017 22:12
- Region: Raaba
Re: Wohnbau - Raaba Grambach - Dr.-Ritter-Straße 2.BA
Super!
Dem nächtlichen mit voller Lautstärke Serien streamen und meine Nachbarn wachhalten steht also nichts im Wege!
Dem nächtlichen mit voller Lautstärke Serien streamen und meine Nachbarn wachhalten steht also nichts im Wege!


